愛媛県エリアイベント情報

今治
30坪でも開放的に暮らせる黒い平屋
日程
2026年1月12日(月・祝)
開催時間
13:00〜17:00(16:00最終受付)
場所
愛媛県今治市延喜
ご予約
イベントが終了しました。
ご来店、ありがとうございました。
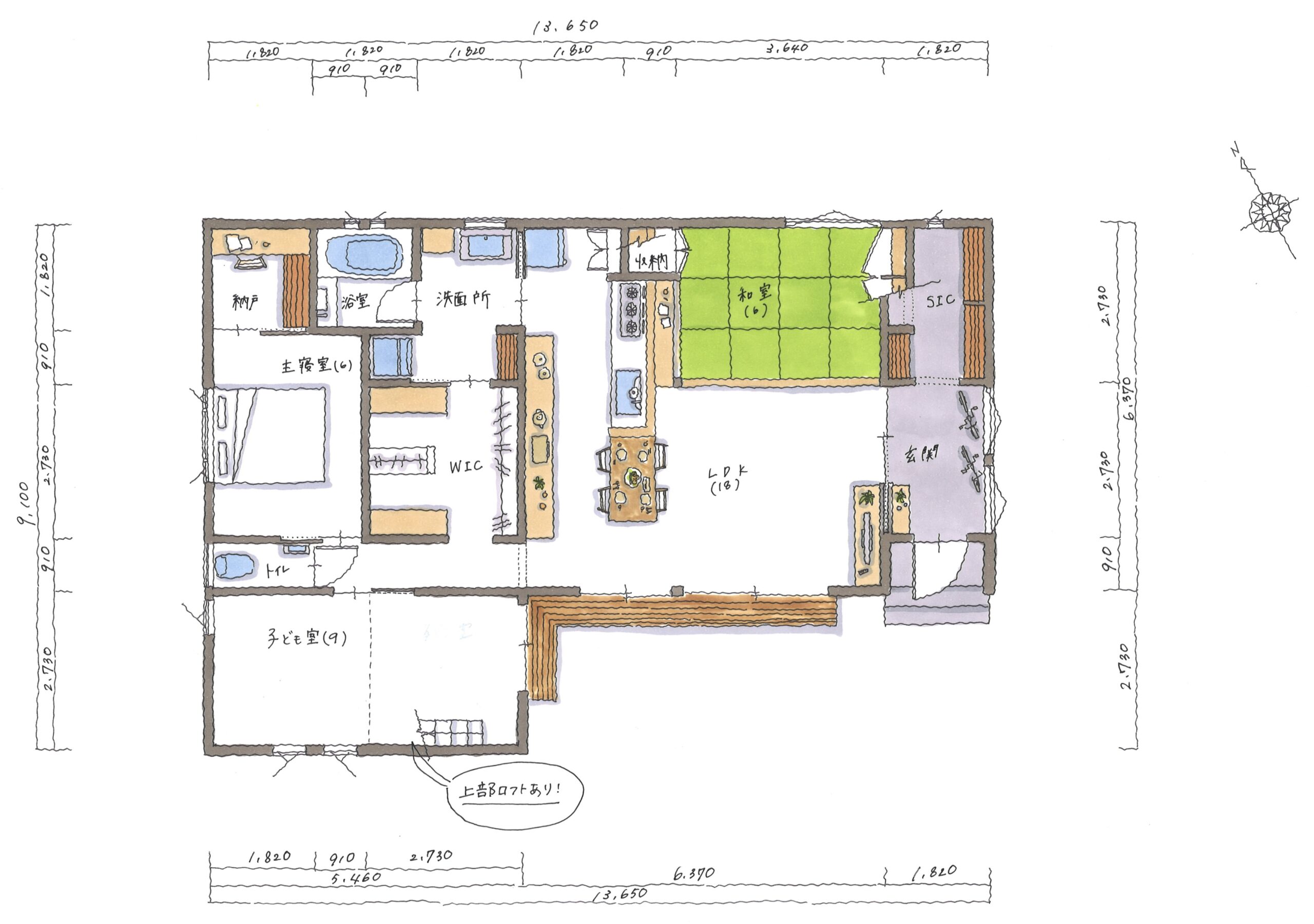
間取り
- 勾配天井と小上がりで生まれる、奥行きと開放感のあるLDK
- 本棚階段とロフトが楽しい、子どもがのびのび過ごせる空間
- 家事ラクを叶える回遊動線とたっぷり収納
物件詳細
| 住宅構造 | 木造軸組みパネル工法 |
| 延床面積 | 30.31坪(100.20㎡) |
| 敷地面積 | 68.89坪 (227.76㎡) |
| 間取り | 2LDK |
| LDK+畳スペース | 24.0帖 |
▲勾配天井の下で家族がゆったり過ごせる、光に満ちたLDK。
▲玄関ホールをなくすことで、土間から続く空間がより広く感じられます。
▲家事ラクを叶える回遊動線と、たっぷり収納がひと続きになった洗面スペース。
▲本棚階段がワクワクを添える、遊びも学びも広がるキッズスペース。
恐れ入りますが、2025年12月29日(月)〜2026年1月4日(日)は、年末年始休暇とさせていただきます。
上記期間中にいただいたご予約につきましては、1月5日(月)以降、順次ご返信差し上げます。
メールフォーム以外でのご予約につきましては、1月5日以降、今治スタジオ(0898-24-0028)にてお電話でも承っております。
「見学会の予約をしたいのですが…」とお電話下さい。
見学会開催日当日(1/12)のご予約は、お電話でいただけますとスムーズにご案内できます。
また、メールフォームでのお申込みから2〜3日経っても折り返しのご連絡がない場合は、
恐れ入りますがお電話にてお問い合わせいただけますと幸いです。
見学会開催日当日(1/12)のご予約は、お電話でいただけますとスムーズにご案内できます。
また、メールフォームでのお申込みから2〜3日経っても折り返しのご連絡がない場合は、
恐れ入りますがお電話にてお問い合わせいただけますと幸いです。
なお、駐車場に限りがあるため、事前のご予約をお願い致します。
ご予約時間を15分以上前後する場合はご連絡ください。
ご予約時間を15分以上前後する場合はご連絡ください。
駐車場アクセス
愛媛県今治市延喜
Other Events






